東四つ木四丁目工場
初期費用シミュレーションこの物件を借りた場合の初期費用の一例です。
- 賃料
- 管理費・共益費
- 敷金:
- 礼金
- 前家賃(日割り) ※1
-
- 前家賃(日割り)
- 仲介手数料 ※2
- その他費用
- 合計
※1. 1か月を30日として計算しています。
※2. 仲介手数料は仮の価格となりますので、実際の価格に関してはお気軽にお問い合わせ下さい。
ポイント・特徴
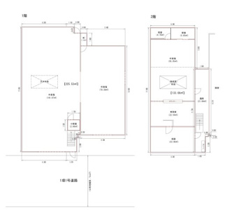
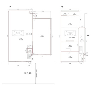
物件概要
【工場】 物件番号:98206936 情報更新日:2026年01月18日 次回更新予定日:2026年01月22日| 所在地 | 東京都葛飾区東四つ木4丁目 | ||
|---|---|---|---|
| 交通 | |||
| 賃料/坪単価 | 80万円/0.74万円 | 坪数(面積) | 108.47坪(358.61㎡) |
| 管理費・共益費 | - | 敷金/礼金/保証金 | 5ヶ月/1ヶ月/- |
| 償却/敷引 | 2ヶ月/- | 更新料/更新事務手数料 | 1.5ヶ月(新賃料)/0.55ヶ月 |
| 駐車場/月額料金 | -/0円 | 権利金/雑費 | -/- |
| 保険加入/料金 | 有/- | 保険名/保険期間 | あいおいニッセイ同和損保保険/- |
| 保証人代行義務/利用料 | 任意加入/ レストソリューション株式会社:初回保証料総家賃100%、年間保証料総家賃の10% | 保証会社 | その他 |
| 保証会社詳細 | - | 向き | - |
| 築年月(築年数) | 1965年 1月 (築61年) | 契約期間 | 3年 |
| 種別/構造 | 工場/鉄骨造 | 部屋/所在階/階建 | -/-/2階建 |
| 現況 | 空家 | 引渡時期 | 即時 |
| 取引態様 | 一般媒介 | ||
| 物件番号 | 98206936 | 取引条件の有効期限 | 2026年01月22日 |
| 設備条件 |
|
||
| 備考 | 当社イチオシの物件の「東四つ木四丁目工場」。ぜひ一度ご覧ください。賃料90万円の物件です。徒歩9分に駅のある、ニーズの高い物件です。 | ||
| 取扱会社 |
|
||
※地図上に表示される物件の位置は付近住所に所在することを表すものであり、実際の物件所在地とは異なる場合がございます。
















